Fire Inspection Software For IPad
Conduct Fire Inspections with Ease Using Your iPad

Key Features for Fire Inspection Software Designed for iPad
Easily conduct thorough safety inspections or post-fire investigations with our intuitive software designed for iPads. Take advantage of features such as pinpoint photo annotations, automatic floor plan drawings, and streamlined workflows to maximize detail and efficiency.
Fire Inspection Made Clear & Actionable on iPad

Smart On-Site Drawing & Mapping

Real-Time Sync & Cloud Collaboration

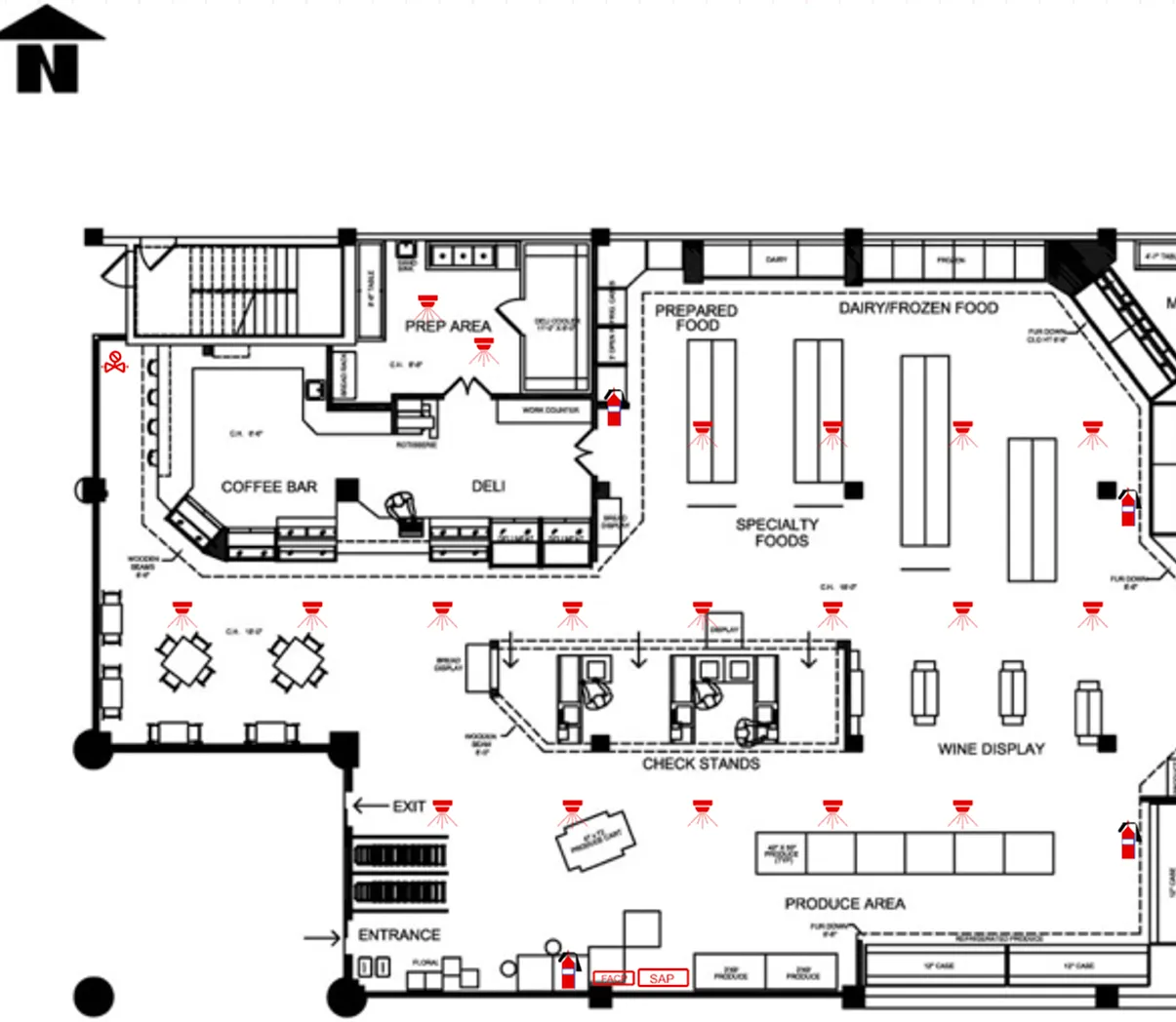
Fire Inspection Plans with Satellite Imagery

Key Features to Consider When Choosing Fire Inspection Software for iPad
For fire safety professionals, inspections must be accurate, repeatable, and efficient. Traditional pen-and-paper methods or desktop-only systems often lead to errors, lost data, or wasted time entering information after the site visit. That’s why fire inspection software designed for iPad has become an essential tool. With mobile apps optimized for iOS devices, inspectors can capture data in real time, create clear reports, and stay compliant without the administrative bottlenecks.
Offline Usability Wherever You Work
Not every building or job site has reliable internet access—and inspectors can’t wait on Wi-Fi. ArcSite’s fire inspection software for iPad works seamlessly offline, allowing inspectors to capture data, mark diagrams, and complete inspection forms even in basements, mechanical rooms, or remote facilities. Once a connection is restored, all data syncs automatically to the cloud, ensuring nothing is missed and every detail is up to date.
Customizable Forms and Visual Documentation
Every inspection is different, and fire safety professionals need tools flexible enough to match the scope of the job. With ArcSite on iPad, inspectors can use customizable templates to record device status, testing results, compliance issues, and certification details. Even better, ArcSite’s visual documentation tools make it easy to diagram extinguisher placements, sprinkler zones, and alarm panels directly on the plan. Adding photos, notes, and annotations ensures inspections are both thorough and easy to understand.
Faster, More Accurate Reporting
ArcSite accelerates reporting by automatically turning captured inspection data into professional, standardized reports. Instead of re-typing notes or piecing together photos later, inspectors can deliver ready-to-share reports before leaving the site. This not only saves valuable time but also builds trust with property managers and clients who depend on fast, accurate compliance documentation.
Why ArcSite Stands Out for Field Professionals
While many mobile inspection apps cover only the basics, ArcSite for iPad goes further—combining CAD-level drawing precision with intuitive, touch-friendly tools built specifically for the field. Inspectors can map out inspection areas, calculate materials, and produce reports in one streamlined workflow. For businesses managing multiple teams or properties, ArcSite scales effortlessly, ensuring every inspection is consistent, audit-ready, and compliant.
Demo It Today
Fire inspection software for iPad should simplify the inspector’s day, not add complexity. With ArcSite, fire safety teams gain offline access, customizable forms, precise visual mapping, and instant reporting—all designed to make inspections more efficient, accurate, and professional.
Our users rave about the benefits they experience with ArcSite.
Listen to stories from professionals like you who used ArcSite to save them time, reduce costs, and alleviate daily work frustrations.







Trusted by the Pros. Honored for Innovation.










